0
Skip to Content
Home
About
Projects
Concept Plan 2700
Gun Barrel City
Richardson Remodel
New Home Design 1
New Home Design 2
Contact
CONTACT US
Open Menu
Close Menu
Home
About
Projects
Concept Plan 2700
Gun Barrel City
Richardson Remodel
New Home Design 1
New Home Design 2
Contact
CONTACT US
Open Menu
Close Menu
Home
About
Folder:
Projects
Back
Concept Plan 2700
Gun Barrel City
Richardson Remodel
New Home Design 1
New Home Design 2
Contact
CONTACT US
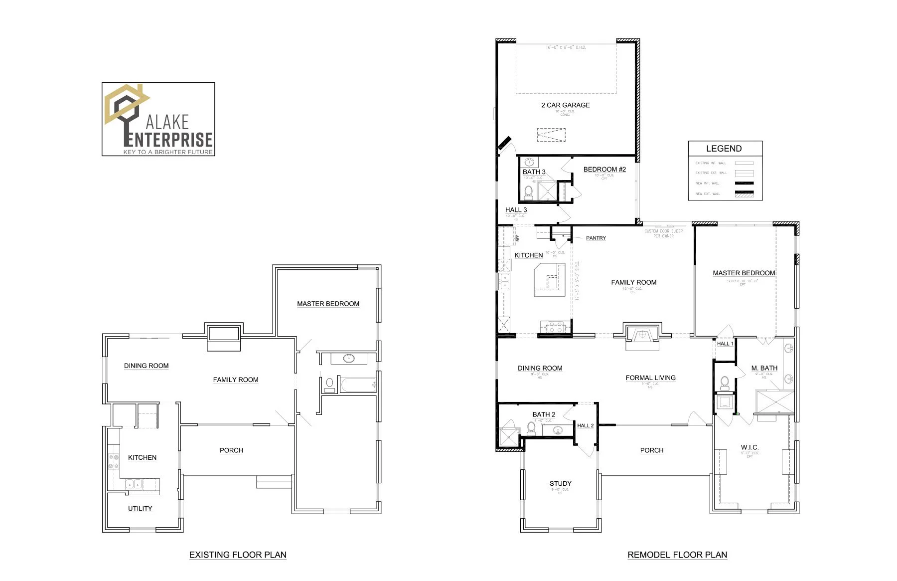
richardson remodel
Currently under construction.
View fullsize
View fullsize